Appartement Á louer, Szigetszentmiklós

Page principale » Appartement Á louer, Szigetszentmiklós » Appartement Á louer, Szigetszentmiklós

400 000 Ft

€1 029
Données d'annonceur

Gergicsné B. Enikő

Écrivez un message
Votre message, 10 caractères minimum.
Descriptif

Texte traduit

Texte originel
IDE BŐRÖNDDEL KÖLTÖZHET!!!
SZIGETSZENTMIKLÓSON, BELVÁROSI BÚTOROZOTT, KLIMATIZÁLT, ÖSSZKOMFORTOS ÚJ LAKÁS TERASSZAL, 2 db BELSŐ UDVARI PARKOLÁSSAL, IGÉNYES BÉRLŐNEK KIADÓ!

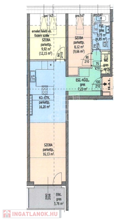
Szigetszentmiklóson, remek közlekedési lehetőségek mellett, az új Thököly utcai lakóparkban, modern, belső udvaros, a külvilágtól elektromos kapuval zárt társasházban, 63m2 lakóterületű, összkomfortos, egyedi méréssel rendelkező házközponti fűtéses, földszinti, lakberendező által berendezett lakás, 6m2 erkéllyel kiadó.

A lakás klimatizált, igényesen bútorozott, gépesített, riasztóval felszerelt.

A társasház 2024-ben épült, téglából, magas-tető szerkezettel.
Az ingatlan külső nyílászárói műanyag szerkezetűek, hőszigetelt üvegezéssel. A beltéri ajtók faszerkezetűek.
Fűtése, meleg víz ellátása egyedi mérővel ellátott házközponti.

A lakás, hivatalosan, közjegyzői szerződéssel, leinformálható, önmagára és környezetére igényes pár számára, hosszú távra bérelhető.

Kaució: 2 hónap.

Közös költség: 25.515.-Ft, a szemét díjat, a lépcsőház világítást, az elektromos kapu üzemeltetését, a takarítást, a kert rendben tartását, az épület biztosítását tartalmazza.

Helyiségek:
nappali-étkező-konyha 32,33m2, előszoba 7,23m3, szoba 12,15m2, szoba 8,12m2, fürdőszoba 3,73m2, toalett 1,48m2, erkély 5,78m2;

A lakáshoz a társasház területén belül, 2db felszíni parkoló, 1 db 2m2 tároló tartozik.

A környék békés, nyugodt, a szomszédok barátságosak, közlekedése remek.

Az ingatlan közelében, bevásárlási lehetőségek és hivatalok közül szinte minden pár perc távolságban megtalálható, a közért, pékség, hentes, zöldséges, étterem, gyógyszertár, iskola, óvoda, posta, bank, uszoda, autó-szerviz, stb.

AZ INGATLAN AZONNAL BIRTOKBA VEHETŐ!!!

TOVÁBBI RÉSZLETEKÉRT, VÁROM MEGTISZTELŐ HÍVÁSÁT!

A részletes adatvédelmi tájékoztató folyamatosan elérhető a www.gdn-ingatlan.hu/adatvedelem oldalon.

Détails d'annonce: Appartement

2e étage

Brique

Chauffage urbain

Excellent

Confort moderne

Impéccable

63 mètre carré

n/a

Propre

n/a

Pare-feu

Carte