Appartement Á vendre, Budapest, IIe. Arrondissement

Page principale » Appartement Á vendre, Budapest, IIe. Arrondissement » Appartement Á vendre, Budapest, IIe. Arrondissement

69 500 000 Ft

€180 094
Données d'annonceur

Virág Attila

Écrivez un message
Votre message, 10 caractères minimum.
Descriptif

Texte traduit

Texte originel

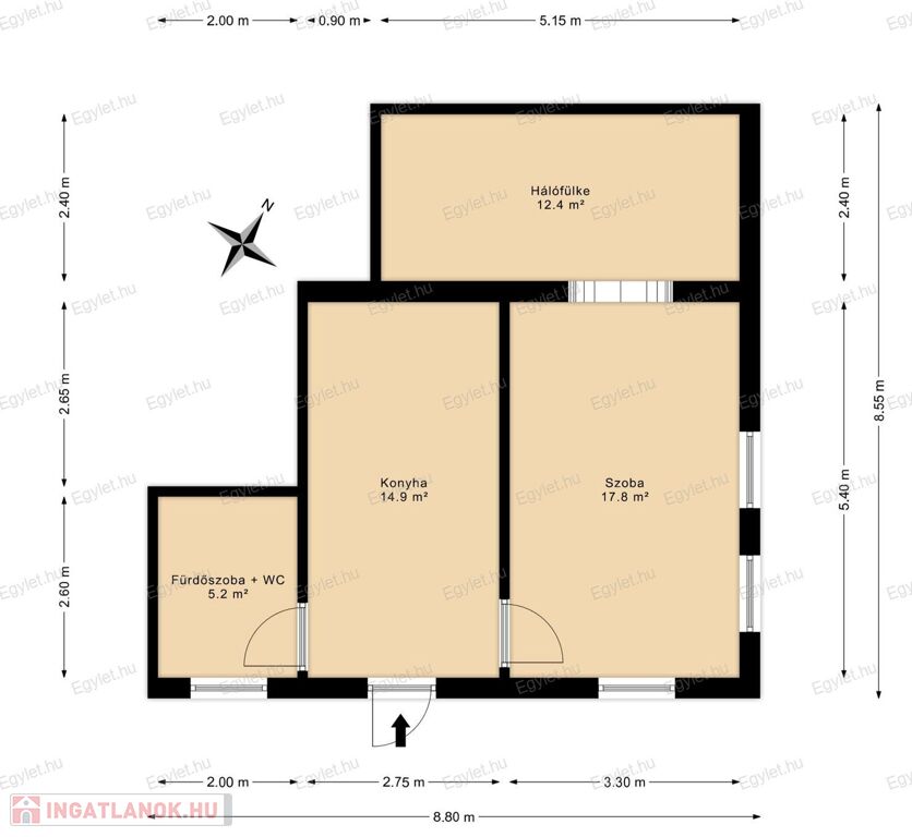
Budapesten a II. kerületben, Széher úton található 5 lakásos társasházban egy földszinti lakás eladó

 

Legfontosabb információk:

- kiváló környék, csendes városrész, fenyőfákkal beültetett kert;

- földszinti lakás, kertkapcsolattal;

- konyha, szoba + tágas hálófülke, fürdőszoba WC-vel elrendezés;

- teljesen kiürített, azonnal birtokba vehető, esztétikai és műszaki állapota felújítandó;

- műanyag keretes, hőszigetelt üvegezésű ablakok;

- fűtést gázkonvektor, meleg vizet villanybojler biztosítja.

 

Ajánlom azoknak, akik szívesen megvalósítanák egyéni elképzeléseiket.

 

További információkért hívjon bizalommal!

Détails d'annonce: Appartement

Rez-de-chaussée

Brique

Convecteur

Á rénover

Confort

n/a

44 mètre carré

n/a

n/a

n/a

n/a