Appartement Á vendre, Budapest, VIe. Arrondissement

Page principale » Appartement Á vendre, Budapest, VIe. Arrondissement » Appartement Á vendre, Budapest, VIe. Arrondissement

256 861 000 Ft

€666 773
Données d'annonceur

Makó Nelly

Écrivez un message
Votre message, 10 caractères minimum.
Descriptif

Texte traduit

Texte originel
A Szent István Bazilika és az Opera szomszédságában épül a főváros egyik legexkluzívabb fejlesztése.
A lakások egyedisége egyrészt a régi idők és a modern kor ötvözetében rejlik.
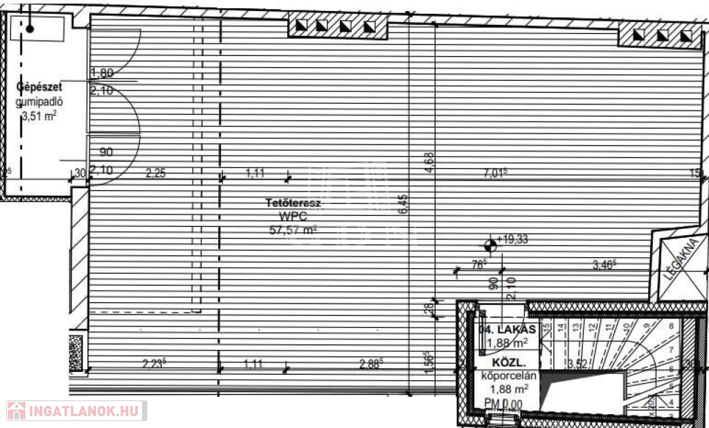
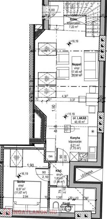
Egy klasszikus épület, melynek teljes körű felújítása során, a legfelső szinten, a padlástéren 4 modern, tetőteraszos okos otthon kerül kialakításra.
A Belváros szívében vagyunk, ahol a színházak, éttermek, hangulatos kávéházak és az Andrássy úton található számos vásárlási lehetőségek teszik színesebbé a mindennapjainkat.
Ebben az inspiráló környezetben, panorámás kilátással, a modern kor technológiájával felszerelt lakások várják a leendő új lakókat.

4 db lakás
41-139 m² lakások

Détails d'annonce: Appartement

4e étage

Brique

Unique

Excellent

Confort moderne

Récemment construit

50 mètre carré

n/a

Propre

n/a

Panoramique

Carte