Texte traduit
Texte originel
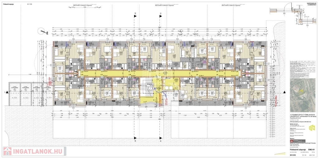
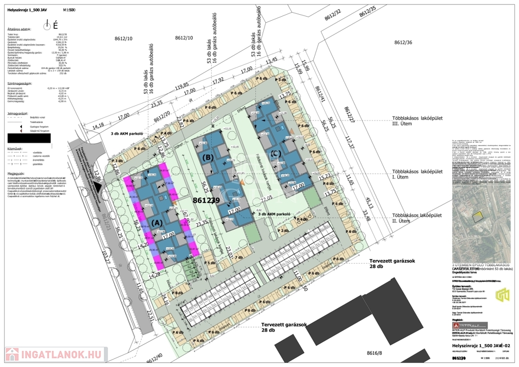
Szombathelyen, jó infrastruktúrával rendelkező Joskar Ola városrészen, modern, 58 lakásos tégla építésű társasházban, magas műszaki tartalommal épülő lakásokat kínálunlk eladásra. Az ingatlanok 36-66 m2 nagyságúak, nappali+1, illetve nappali+2 szobásak, erkélyekkel, teraszokkal. Központi távhős fűtés tervezett, a lakásokban padlófűtéssel egyedi hőmennyiség szabályozással és mérővel.
A használati melegvizet is a távhő központból biztosítják, a fogyasztás
lakásonként egyedi mérővel történik.
Az ingatlanban 1 db 2,5 kw-os hőszivattyús Green vagy azzal egyenértékű típusú klíma kerül felszerelésre. Nyílászárói fokozottan hang-és hőszigeteltek, redőny fogadására alkalmas szemöldökkel. Az épület homlokzatára 15 cm vastag EPS rendszerű szigetelés kerül. A lakásokhoz felszíni parkoló, tároló és garázs is vásárolható. Parkoló 1.8 millió forint, tároló nagyságtól függően 2.2-4.5 millió forint, garázs 10.9 millió forint. Várható átadás 2026 ősze. Ha teljeskörű tájékoztatást szeretne, kérem keressen . Az irodánkban személyes találkozóra van lehetőség. Ha hitere van szüksége, abban is segítünk.
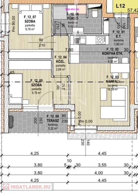
A hirdetésben szereplő lakás : Fsz.12. 52.500.000 Ft. Az ÁFA visszaigényelhető.
Az ingatlan alapterülete 54.74 m2, 5 m2 erkéllyel.
Rez-de-chaussée
Brique
Interne avec compteur individuel
Excellent
Confort moderne
Récemment construit
55 mètre carré
n/a
Propre
n/a
Façade sur rue
Trouvez la maison, l'appartement, garage, terrain de vos rêves, á la localité de votre choix.
Le Immobilier.hu est le membre du Groupe Immobilier.
Immobiliers á vendre en Hongrie - Immobilier.hu © 2025 Tous droits réservés