Maison Á vendre, Alsószuha

Page principale » Maison Á vendre, Alsószuha » Maison Á vendre, Alsószuha

12 900 000 Ft

€33 428
Données d'annonceur

Hausel László

Écrivez un message
Votre message, 10 caractères minimum.
Descriptif

Texte traduit

Texte originel
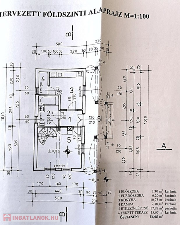
Alsószuhán 95m2-es szerkezetkész családi ház, 720m2-es telken Eladó!

A tervezett lakóépület oldalhatáron álló földszint + tetőteres, útra merőleges gerincű csonka kontyolt nyeregtetővel.
A lakás nettó alapterülete: 56,05+38,95 m2 (fölszint+tetőtér)
A tervrajzok és az engedélyek rendelkezésre állnak.
A telken az ipari áram kialakításra került.

Megtekintés előre egyeztetett időpontban lehetséges.

Détails d'annonce: Maison

95 mètre carré

720 mètre carré

Structurellement complet

Maison indépendante

n/a

Thermosiphon

n/a

n/a

n/a

n/a

n/a

n/a