Texte traduit
Texte originel
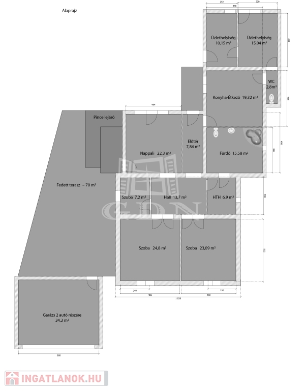
Gödöllőn 548 m2-es telken a Szilágyi Erzsébet utca és a Hunyadi János utca között, két utcafronttal, nettó 168,72m2-es + 34,3m2-es kétautós garázzsal, 13,5m2-es pincével és 70 m2-es fedett terasszal rendelkező családi ház eladó!
A 2004-ben épült és folyamatosan modernizált ingatlanban a Hunyadi János utca felőli utcafronti bejárattal egy 35 m2-es üzlethelyiség található. A homlokzati falak 30-as és 38-as tégla falazattal épültek, melyeket 10cm-es EPS dryvit szigeteléssel láttak el. A külső nyílászárók műanyag thermó üvegekkel szereltek. A tetőt zsindely fedi.
A fűtésről kombi gázkazán gondoskodik.
A parkosított kertet öntözőrendszer locsolja helyettünk. A megközelítőleg 70m2-es fedett terasz kiválló helyszíne a családi összejöveteleknek és a pihenésnek. Az itt található jacuzzi is a vételár részét képezi.
Parkolni a Sziláégyi Erzsébet utcáról elektromos garázsajtón megközelíthető 2 autó tárolására kialakított garázsban tudunk.
A villamos áram terhelhetőseége 1x32A.
Az üzlethelyiség gipszakrtonnal lett elválasztva, hogy akár 2 üzletet is üzemeltethessünk. A könnyedén elbontható válaszfallal 35m2-es helyiséget tudunk kialakítani.
Tárolásra a nappali alatt kialakított 13,5m2-es pince kiváló lehetőséget ad.
Készpénzes vevők jelentkezését várjuk.
Amennyiben hirdetésem felkeltette az érdeklődését vagy egyéb információra van szüksége hívjon bizalommal!
169 mètre carré
548 mètre carré
Moyen
Maison indépendante
Brique
Thermosiphon
Gáz
Confort moderne
21-50 ans
n/a
Rez-de-chaussée
n/a
Trouvez la maison, l'appartement, garage, terrain de vos rêves, á la localité de votre choix.
Le Immobilier.hu est le membre du Groupe Immobilier.
Immobiliers á vendre en Hongrie - Immobilier.hu © 2025 Tous droits réservés