Maison Á vendre, Nyíregyháza

Page principale » Maison Á vendre, Nyíregyháza » Maison Á vendre, Nyíregyháza

89 000 000 Ft

€233 872
Données d'annonceur

Petrován Pál Gyula

Écrivez un message
Votre message, 10 caractères minimum.
Descriptif

Texte traduit

Texte originel
Eladó Nyíregyháza Nyírszőlős részén a Gólyahír lakóparkban 2025-ben épülő új amerikai stílusú A++ besorolású 4 szobás kertes családi ház. (T/1)

Ára: 89.000.000 Ft.

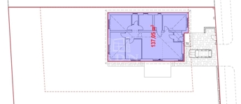
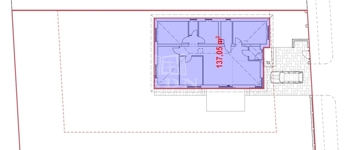
Az ingatlan alap méretei:
- a telek mérete: 781nm,
- a ház alapterülete: 137nm.

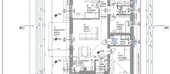
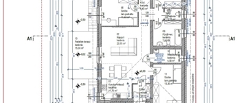
Az épület hasznos alapterülete 108,7nm melyben található:
- 4 szoba,
- amerikai konyhás nappali,
- fürdőszoba + WC,
- mosókonyha,
- WC,
- közlekedő,
- előtér,
- fedett terasz.


Az új építésű családi ház várhatóan 8 hónapon belül kerül átadásra, mely korszerű hő takarékos építészeti megoldásokat alkalmazva készül el. A falazata 30-as téglából épül, mely 15 cm-es EPS homlokzati hőszigetelést kap. A födém szerkezete 15 cm-es ásványszálas hőszigetelésű lesz, így az egész épület energetikai szempontból A++ kategóriájú.

Az amerikai stílusú kombinált sátortető cseréppel lesz fedve. Az épületben áram, víz, gáz és csatorna szintén bekötésre kerül. Az épület padlófűtéssel, radiátoros fűtéssel vagy kérés esetén a kettő kombinációjával készül el, mely gáz cirkó kazánról fog működni. Ezen kívül még 2 db hűtő-fűtő klíma is rendelkezésre fog állni. A melegvíz ellátásról szintén a gáz cirkó kazán gondoskodik.

Az ingatlan ideális választás lehet mindazok számára, akik új építésű, modern energiatakarékos otthont keresnek nyugodt kertvárosi környezetben.

Fontos!
Az ingatlan per és tehermentes, 3 gyerekes CSOK Plusz is igénybe vehető!

Figyelem!
Minőségi kivitelezés és választható belső burkolatok, szaniterek.
2025-ös energetikai szabványoknak megfelelő modern megoldások.
A belső elrendezés igény szerint módosítható.

Ha felkeltette érdeklődését, hívja irodánkat bizalommal!
Ha hitelre van szüksége éljen ingyenes, személyre szabott hitel ügyintézési szolgáltatásunkkal is.

Détails d'annonce: Maison

109 mètre carré

781 mètre carré

Excellent

Maison indépendante

Brique

Thermosiphon

Gáz

Double confort

Récemment construit

n/a

Rez-de-chaussée

n/a

Carte