Maison Á vendre, Tiszalúc

Page principale » Maison Á vendre, Tiszalúc » Maison Á vendre, Tiszalúc

19 320 000 Ft

€50 043
Données d'annonceur

Takács Alán

Écrivez un message
Votre message, 10 caractères minimum.
Descriptif

Texte traduit

Texte originel
Tiszalúc központjában, Széchenyi utcában, többfelé célra alkalmas, 95.80 m²-es földhivatali nyilvántartásban "kivett takarékszövetkezet"-ként nyilvántartott ingatlan, 689 m²-es telekkel eladó!
Ár: 19.320.000, -Ft+Áfa

Műszaki leírás:
2001-ben épült, földszint tagolódású, tégla falszerekezetű épület. Födém vasbeton gerendás, tetőformája, sátortető, cserepes lemez fedéssel. Homlokzata vakolt színezet a lábazaton dísztégla burkolat látható. Homlokzati nyílászárói műanyag szerkezetű ablakok, hőszigetelt üvegezéssel. Fűtését és melegvíz-ellátását kombi gázkazán biztosítja, radiátor hőleadókkal.

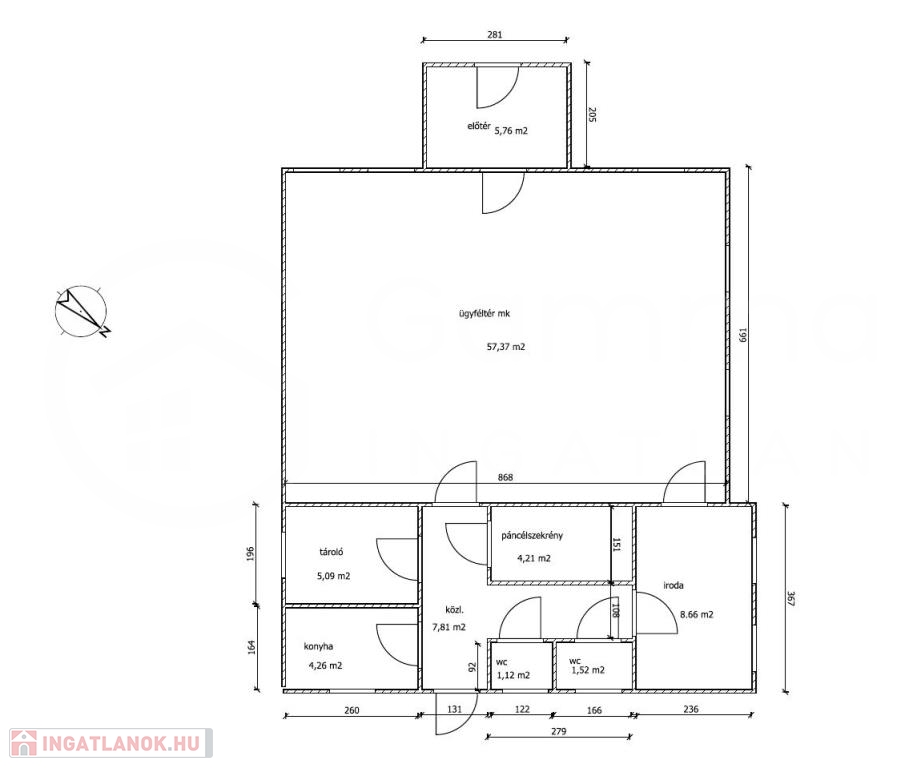
Helyiség lista:
- Előtér
- Ügyféltér
- Közlekedő
- Tároló
- Konyha
- 2db WC.
- Iroda
- Páncélszekrény

Környezet:
Település központi, oktatási intézmény és kereskedelmi célú
ingatlanokkal, lakóházakkal szomszédos.

Közlekedés:
Aszfaltozott úton megközelíthető
Tömegközlekedés buszmegálló 50m

Détails d'annonce: Maison

96 mètre carré

689 mètre carré

Bon

Maison indépendante

n/a

Thermosiphon

n/a

n/a

n/a

n/a

n/a

n/a