Maison Á vendre, Zákány

Page principale » Maison Á vendre, Zákány » Maison Á vendre, Zákány

60 000 000 Ft

€154 456
Données d'annonceur

Agoudan Dániel

Écrivez un message
Votre message, 10 caractères minimum.
Descriptif

Texte traduit

Texte originel
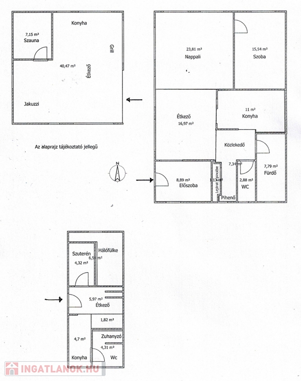
Ritkaság! Zákányban új építésű ingatlan komplexum eladó!

Csodaszép környezetben, az erdő ölelésében, távol szomszédoktól vár álmaid otthona, a pihenés Mekkája, mely 3 különálló ingatlanból áll. Egy új építésű, 95 nm-es igényesen megépített téglából és könnyűszerkezetből szigetelt épületből, egy 28 nm-es tégla építésű vendégházból, és egy szintén könnyűszerkezetes 48 nm-es wellness épületből, ahol a pezsgőfürdős jakuzzi mellett a szauna, grill, konyha és bárpult is rendelkezésre áll.

Mindez egy igényesen kialakított 4476 nm-es parkosított környezetben kapott helyet. Az egymással harmonizáló, egyedi, kifinomult eleganciát tükröző burkolatok, szaniterek, csaptelepek, nyílászárók és a berendezés egy igazán kellemes, és igényes környezetet biztosít.

Az épületek minden oldalról szigeteltek, a hőmérséklet szabályozása klímákkal és elektromos panelekkel történik. Az épület megfelel a szigorú tűzvédelmi szabályoknak, a vizes helyiségek vízálló gipszkartonnal vannak elválasztva. Az ingatlanba a vezetékes vízhálózat ki lett építve, az elektromos hálózat 380 voltra lett bővítve. A szennyvíz derítőbe van elvezetve.

Az udvar egy része kavicsos, akár több gépkocsi is kényelmesen parkolhat.

Ne hagyd ki ezt az egyedülálló lehetőséget! Most van itt a lehetőség, várunk szeretettel egy személyes megtekintésre, hogy megismerhesd ezt a mesés ingatlant.

Ne habozz, hívj most, és válj részévé ennek a varázslatos helynek!

Referencia szám: HK-4483949-NOK

Détails d'annonce: Maison

187 mètre carré

4 476 mètre carré

Moyen

Maison indépendante

Ossature légère

Électricité

Électricité

Confort

Récemment construit

n/a

Rez-de-chaussée

n/a

Carte