Office Á vendre, Balmazújváros

Page principale » Office Á vendre, Balmazújváros » Office Á vendre, Balmazújváros

42 200 000 Ft

€111 255
Données d'annonceur

Rákosné Tímea

Écrivez un message
Votre message, 10 caractères minimum.
Descriptif

Texte traduit

Texte originel
Fektess be a jövődbe egy kivételes ingatlanban, amely Balmazújváros szívében vár rád!

Ez a remek lehetőség üzleti célú felhasználásra készült, és tökéletes választás lehet számodra, ha egy dinamikusan fejlődő környezetben szeretnél elindítani vagy bővíteni vállalkozásodat. Az ingatlan 38.38 nm alapterületű, ami ideális méretet biztosít egy kis üzlethelyiség, iroda vagy akár bemutatóterem számára. Balmazújváros nemcsak a csendes, biztonságos környezetéről ismert, hanem könnyű megközelíthetőségéről is. Az ingatlan közelében található közlekedési lehetőségek kiválóak, hiszen a város jól kapcsolódik a környező településekhez, így a potenciális ügyfelek könnyedén elérhetik. Az autóval történő közlekedés is zökkenőmentes, hiszen a főbb közlekedési útvonalak mind csupán néhány perc távolságra vannak.

Az üzlet/iroda jellemzői:
- utcafrontos bejárattal rendelkezik
- gyalogos és autós forgalom is halad az üzlet előtt
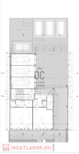
- az épülő társasház földszintjén helyezkedik el, nettó 39 m2-en
- üzlettér 28,8 m2 a többi pedig kiszolgáló egység
- nyílászárók 3 rétegű üvegezéssel ellátott hőszigetelt ablakok
- az üzletben elhelyezésre kerül 1 db hűtő-fűtő klíma
- fűtése gáz-cirkó egyedi mérő egységgel ellátva
- az hirdetési ár bruttó ár, mely tartalmazza a 27% ÁFÁ-t

A környék csendes, zöldövezeti része pedig ideális helyszín az üzleti tevékenységekhez, ahol a nyugalom és a rendkívüli panoráma inspiráló légkört teremt. A lehetséges funkciók széles spektrumot ölelnek fel, így bátran gondolkodhatsz különböző üzleti modellekben. Legyen szó kereskedelmi tevékenységről, szolgáltatásokról vagy akár egyedi koncepciókról, az ingatlan rugalmasan alkalmazkodik az elképzeléseidhez. A gáz cirkó fűtés pedig biztosítja a kényelmet és a hatékony energiafelhasználást, így a működés költségei is kedvezőbbek lehetnek.

A városban számos lehetőség vár rád, legyen szó akár helyi partnerekről, ügyfelekről vagy a közeli nagyvárosokhoz való kapcsolódásról. Az ingatlan kiváló elhelyezkedése lehetővé teszi, hogy a környék üzleti életében aktívan részt vegyél, és kihasználhasd a környező lehetőségeket. Ne habozz, hogy kérdéseiddel keresd fel a szakértőinket, akik szívesen segítenek neked minden részletben! Az ingatlan iránti érdeklődésed nemcsak egy új lehetőséget nyithat meg számodra, hanem egy biztos befektetést is jelenthet a jövőd érdekében. A lehetőségek tárháza végtelen, és mi itt vagyunk, hogy támogassunk az utadon!

Détails d'annonce: Office

n/a

Office

38 mètre carré

n/a

n/a